Hier informieren wir Sie über Projekte, die von uns unterstützt werden. Wählen Sie bitte aus.
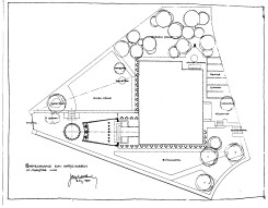
An Hand des Lageplans können Sie sich orientieren.
Die Projekte werden mit eingeworbenen Spenden und eigenen Mitteln finanziell unterstützt.
Zurzeit beschäftigen wir uns mit diesen Projekten:
Ergänzung des Gitterwerks im Nordwesten des Platanenhains
Abgeschlossene Projekte:
Wiedererichtung der Gitterrahmen um die Reliefs
Sanierung der Hoetger-Skulpturen am Ausstellungsgebäude
Sanierung der Hoetger-Skulpturen im Platanenhain
Wiederherstellung des Fliesen-Spiegels am Olbrich-Haus
